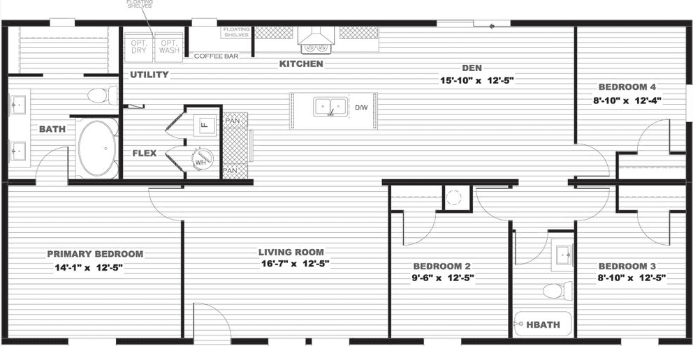
Homes | Boone | Hattiesburg